Projet Neo
Le projet:
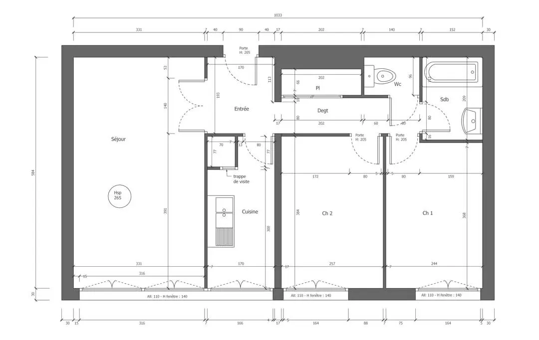
Rénovation totale d’un appartement LYON (69)
La demande:
Retravailler l’ensemble des pièces pour les rendre plus agréable Ouvrir la cuisine sur le salon / Ajouter des rangements au niveau de l’entrée Aménagement et décoration de chaque pièce
Optimiser l’espace pour rendre l’appartement agréable pour une famille de trois personnes
Optimiser l’espace pour rendre l’appartement agréable pour une famille de trois personnes
Avant
Modelisations 3D
Temoignages
Suite au réaménagement personnel de mon espace de vie, Armelle a su établir un projet qui me correspondait tout en tenant compte de mes impératifs et ainsi redéfinir les espaces de mon séjour/ salle à manger / cuisine et créer un environne- ment très harmonieux et à la hauteur de mes attentes. Armelle est très professionnelle, disponible, à l’écoute et vous accompagne jusqu’à l’aboutissement du projet. Je recommande vivement cette professionnelle.
Louise & Nicolas